COMPRAR
CARIBE
CHIPRE
FAMAGUSTA
LIMASSOL
NICOSIA
PAPHOS
EMIRATOS ÁRABES UNIDOS
ESPAÑA
ANDALUCIA
CASTILLA Y LEÓN
CATALUÑA
COMUNIDAD VALENCIANA
GALICIA
IBIZA
MADRID
MADRID ALREDEDORES
MALLORCA
MENORCA
ESTADOS UNIDOS
NUEVA YORK
SOUTH FLORIDA
FRANCIA
ALPES FRANCESES
NORMANDÍA
PARÍS
PROVENZA
RHÔNE-ALPES
RIVIERA FRANCESA
SUROESTE
ITALIA
COMO
MILÁN
TOSCANA
MARRUECOS
ESSAOUIRA
MARRAKECH
TANGER
PORTUGAL
CASCAIS
COMPORTA
LISBOA
PRINCIPADO DE MÓNACO
CARRÉ D'OR
FONTVIEILLE
JARDIN EXOTIQUE
LA CONDAMINE
LARVOTTO
MONTE-CARLO
SUIZA
ALPES SUIZOS
FRIBOURG
GINEBRA
VAUD
ALQUILER
VACACIONES
CARIBE
ESPAÑA
IBIZA
MALLORCA
MENORCA
FRANCIA
PROVENZA
RIVIERA FRANCESA
SUROESTE
PORTUGAL
SUIZA
EVENTO
FRANCIA
LARGO PLAZO
CARIBE
CHIPRE
EMIRATOS ÁRABES UNIDOS
ESPAÑA
IBIZA
MADRID
MADRID ALREDEDORES
MALLORCA
ESTADOS UNIDOS
FRANCIA
PARÍS
PROVENZA
RIVIERA FRANCESA
SUROESTE
ITALIA
COMO
MILÁN
TOSCANA
PORTUGAL
PRINCIPADO DE MÓNACO
CARRÉ D'OR
MONEGHETTI
SUIZA
ALPES SUIZOS
VAUD
VALORACIÓN
AGENCIAS
ANDORRA
CARIBE
CHIPRE
EMIRATOS ÁRABES UNIDOS
ESPAÑA
IBIZA
MADRID - CHAMARTÍN
MADRID - CHAMBERÍ/CENTRO
MADRID - POZUELO
MADRID - SALAMANCA
MALLORCA - PALMA
MALLORCA - SANTA PONSA
MENORCA
FRANCIA
AIX-EN-PROVENCE
ALPILLES
BORDEAUX
CANNES
CAP D'ANTIBES
CAP FERRET
DEAUVILLE
FAYENCE
LUBERON
LYON
MARSELLA
MEGÈVE
MOUGINS
PARÍS Y ALREDEDORES
ALREDEDOR DE PARÍS
PARIS
PYLA - ARCACHON
SAINT-PAUL DE VENCE
SANARY-SUR-MER
ST-JEAN-CAP-FERRAT
ST-TROPEZ
VALBONNE
ITALIA
MILÁN
TOSCANA
MARRUECOS
PORTUGAL
COMPORTA
LISBOA
PRINCIPADO DE MÓNACO
SUIZA
CRANS-MONTANA
GINEBRA
GSTAAD
LAUSANA
MONTREUX - NYON
SION
VERBIER
SERVICIOS
ADMINISTRACIÓN DE PROPIEDADES
OBRA NUEVA
CHIPRE
LIMASSOL
NICOSIA
PAPHOS
ESPAÑA
ANDALUCIA
CATALUÑA
IBIZA
MADRID
MADRID ALREDEDORES
MALLORCA
MENORCA
FRANCIA
PORTUGAL
COMPORTA
LISBOA
SUIZA
COMERCIAL
CARIBE
CHIPRE
ESPAÑA
MADRID
MENORCA
FRANCIA
PROVENZA
RIVIERA FRANCESA
SUROESTE
ITALIA
PRINCIPADO DE MÓNACO
CARRÉ D'OR
FONTVIEILLE
LA CONDAMINE
MONEGHETTI
SUIZA
LIFE CAPITAL
CAPITAL MARKETS
LUXURY CONCIERGE
QUIÉNES SOMOS
JOHN TAYLOR
HISTORIA
REVISTA
ASÓCIESE
CARRERA PROFESIONAL
BLOG
PRESS REVIEW
ARTCURIAL GROUP
ARTCURIAL
ARQANA
NEWS
PARTNERS
COMPASS
CAMPER & NICHOLSONS
YACHTING
COMPRAR
ALQUILER
ENG
FRA
ITA
ESP
DEU
RUS
CZE
PRT
EUR
GBP
USD
CHF
CZK
QAR
COL
SAR
MUR
AED
METRIC
IMPERIAL
volver
>
Inicio
>
Ultimas ventas
vendido
¿Le ha llamado la atención esta propiedad?
+34 971 598 800
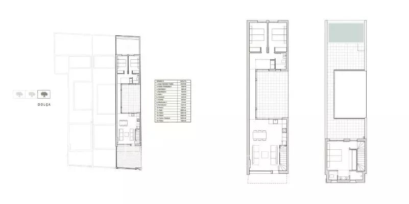
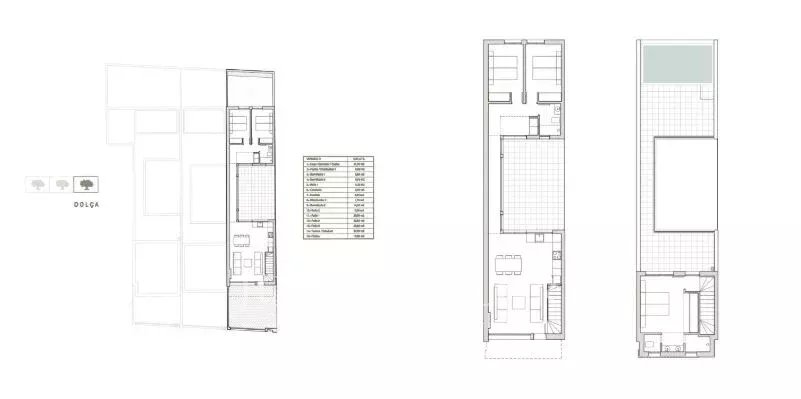
Casa adosada Palma De Mallorca, Son Rapinya, Mallorca
Mos de 3 M €
240 m²
3 Dormitorios
113 m²
2 Cuarto de baño
South
Calle Patio Jardín Ciudad
Piscina
A/A Calefacción
John Taylor Palma de Mallorca
Contacto
+34 971 598 800
Situar en el mapa
JT Real Estate Palma SL
Carrer Constitució 8
07001
PALMA DE MALLORCA
Islas Baleares
,
ESPAÑA
volver
Enlaces rápidos